Welcome to the Architecture Dissertation section of my blog. This was submitted in 2015 in fulfillment of the qualification Masters of Architectural Technology at the University of Johannesburg.
SECTION A: Dissertation
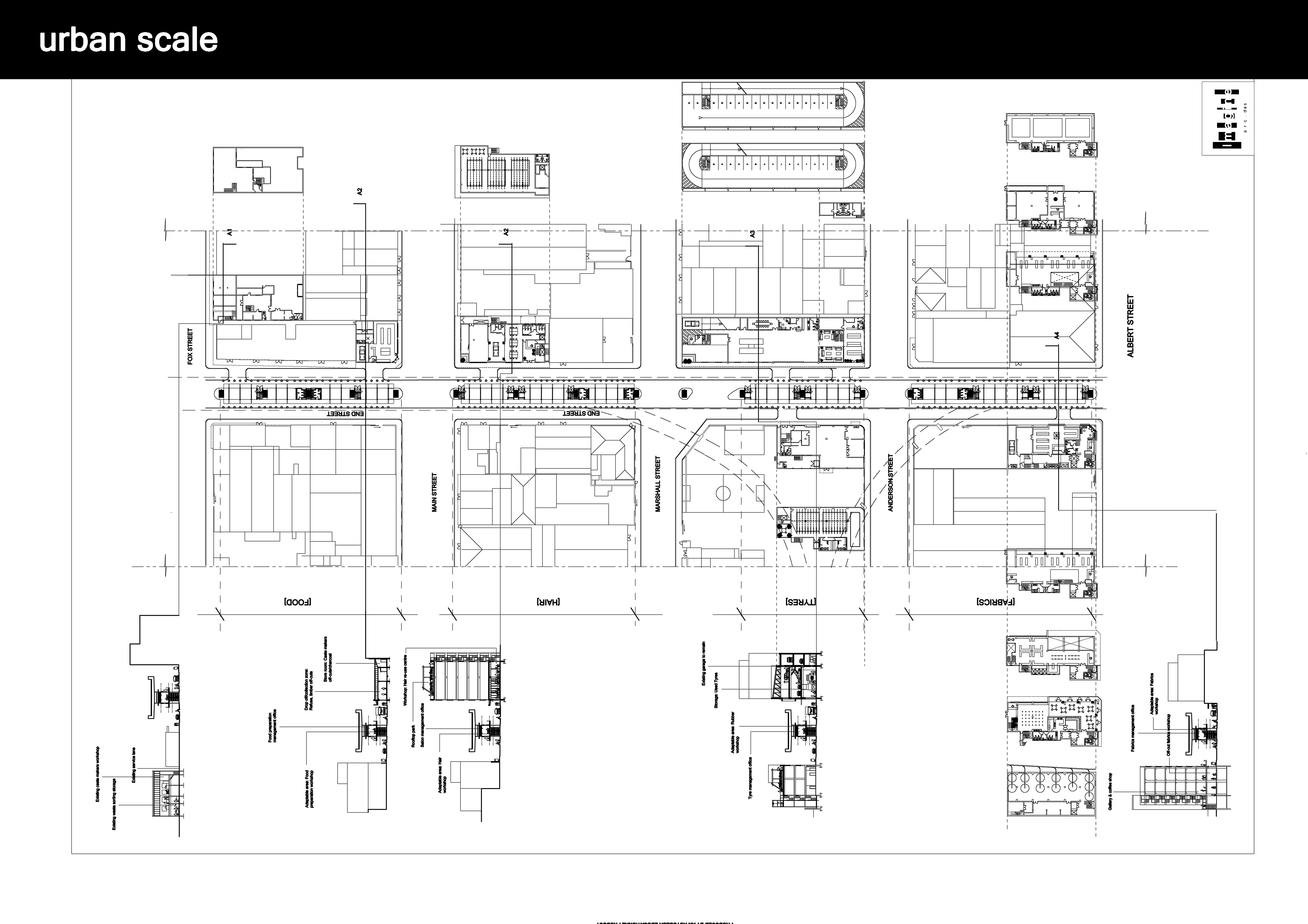
- ELASTIC INFRASTRUCTURE: THESIS FINAL – October 14, 2025


































































This is an artistic representation of what part of my intervention would look like in 5 years from the time of its conception. The key cores along the pillars have remained the same along with the service lanes and bollards which represent a certain level of decision-making. However the more fluid spaces have been reinterpreted by the people to suit their own changing needs which represents another level of decision-making.
l and Clara, and even though it was out of our comfort zone (I prefer working alone in the comfort of my own room), we thoroughly enjoyed the experience as well as learnt a lot from each other in the process. I believe that the relationships that were forged out of this trip will continue to bear fruit for perhaps years to come.
2. REFLECTIONS ON FADA JOINT COMMUNITY PROJECT – JUNE 2, 2015

Having been involved in a similar project last year (Denver), this project presented an opportunity to showcase what I had grasped from the failures and successes thereof. Personally I have found that in projects of this nature (community based), the most challenging aspect thereof, is the laying aside of the conventions of one’s education or discipline. These tend to become a dominant informant of our perception of a place; inevitably becoming the lens
through which we understand, think and communicate. This then results in power differentials between us as designers, and the people that we are ‘supposedly’ designing with. This then necessitates the use of ‘research tools,’ through which one can creatively collect and convey information in a way that allows a platform for inclusive interaction – not only between different disciplines, but also with the layman.


Furthermore, design conventions are not just limited to terms, methods of engagement or mapping, but ways of thinking that govern how we go about projects such as these. For instance, our academic system (which could indirectly also be one of the enforcers of these conventions) stipulates certain outputs, which can end up in students creating ‘containers’ or ‘check
boxes.’ This then institutionalizes the project, paralyzing all creative possibilities
that could have emerged from it – causing it to become ‘output-driven’ as opposed to ‘process-driven’ – the former never truly engaging with the complexities (which are to a great extent unseen) of the site. So in this project the idea of process-driven design as a means towards the conception of a successful joint community project, is once again highlighted in bold.



REFLECTIONS ON GROUP MENTORING

Invariably putting different people, from different disciplines in one pot will always foster unpredictable concoctions. Thus it was with my group, as we had no idea what would come out of such an unusual mix – a mix which at times was difficult to achieve as some of the members proved quite ‘insoluble,’ as they struggled to adopt the group work mentality. Perhaps this was the biggest opposition that we encountered as a group – people having a hard time making
the mental transition from individual to group – adopting an understanding that their actions (or lack thereof) are now tied to the outcome of their fellow group members and vice versa. Fortunately most of them finally learned that lesson towards the close of the project, while one or two, well – I just hope they learn that lesson before they get married. However, overall I was impressed with the group and the refreshing perspectives they brought in from different disciplines and life’s experiences in general. This really went a long way in producing a
project that is rich and multifaceted.

3. JEPPESTOWN IMMERSION EXCERCISE

The ubiquitous presence of car garages is what I had explored initially in Jeppestown. I found that most of the garages based in the region, had service networks that extended beyond their immediate location.

I then wrote a story book (an allegorical critique), from which emerged themes which later aided my site choice. The main finding that came out of this exercise was the concept of an intermediary realm of infrastructure that allows for people involvement. I initially termed it as Shock-Infrastructure, as the concept finds its expression in a car shock absorber, which mediates between a rigid car chassis and an unpredictable road surface.

The main themes that informed my site selection process, were ‘journey, inbetween, and inclusivity.’ I then went on three different journeys, looking for the site that best conformed thereto. Eventually, the City and Surburban region at the edge of Jeppestown conformed the most, and this became my chosen site. Within that site, the Joe Slovo Highway, which officially divides the city and Jeppestown, became my chosen piece of infrastructure to engage with, along
with two abandoned buildings on either side of it.